Der geplante Neubau bildet durch seine Lage am historischen Stadtviertel Gries ein prägnantes Tor zur Tölzer Altstadt. Drei viergeschossige Gebäudeteile orientieren sich nach Süden und Westen und gruppieren sich um einen ruhigen Gartenhof. Entlang der Lenggrieser Straße wird der Straßenraum klar gefasst. Der Wechsel von trauf- und giebelständigen Baukörpern gliedert die Baumasse. So wird eine Riegelwirkung in der kleinteiligen Umgebung vermieden. Geschoss- und Wandhöhen der gegenüberliegenden Bebauung werden aufgenommen, regionale Materialien wie Holz, Ziegel und Putz greifen die vorhandene Architektur auf und interpretieren sie zeitgemäß.
Die Besucherstellplätze und die Zufahrt zur Tiefgarage liegen nördlich des Gebäudes, angrenzend an die bestehende Nachbarzufahrt. Dadurch bleiben die Freiflächen von ruhendem Verkehr ungestört. Die fußläufige Erschließung erfolgt getrennt davon über den Gehweg an der Lenggrieser Straße.
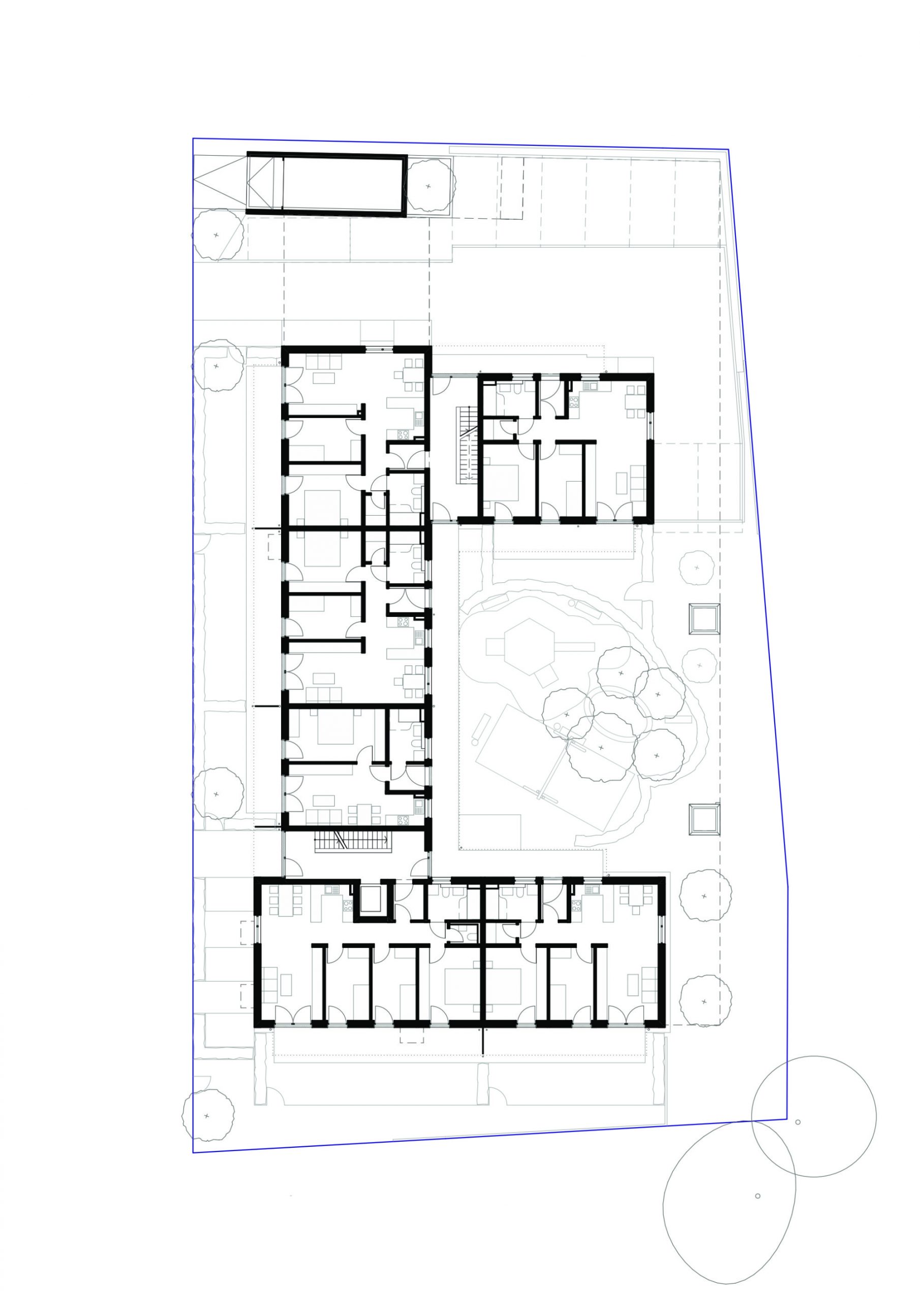
Alle 24 Wohnungen sind über einen zentralen und repräsentativen Treppenraum mit Aufzug barrierefrei erschlossen. Ein zweites Treppenhaus verkürzt die Wege zum Innenhof und zu den Stellplätzen. Beide durchgesteckten Treppenräume schaffen zudem eine kurze Verbindung vom Hof zur öffentlichen Verkehrsfläche. Die horizontale Erschließung der sechs Wohnungen je Geschoss erfolgt über einen offenen Laubengang.
Sämtliche Wohnungen sind barrierefrei nach DIN 18040 und förderfähig nach EOF.

  • Standort

    Bad Tölz

  • Auftraggeberin

    Sparkasse Bad Tölz - Wolfratshausen

  • Projektstand

    Fertiggestellt 2026

  • Leistung

    Leistungsphasen 1 - 9 HOAI
    Brandschutznachweis

  • Bauvolumen

    Bruttogrundfläche 4.641 m²
    Bruttorauminhalt 12.479 m³
    Wohnfläche 1.836 m²
    24 Wohnungen
    44 Kfz - Stellplätze